• Einfamilienhaus Planung

    mit professioneller Einreichplanung

    Architekt Einfamilienhaus 3d Visualiesierung

Einfamilienhaus planen in Wien & Niederösterreich

mit professioneller Einreichplanung

Sie möchten ein Einfamilienhaus planen und Ihr Haus von Anfang an richtig durchdacht aufsetzen? Wenn Sie Ihr Haus planen lassen möchten, erwarten Sie eine Kombination aus architektonischer Qualität, technischer Sicherheit und einer reibungslosen Baubewilligung. Genau das bietet Ihnen unser Team aus erfahrenen Planerinnen mit Architekturabschluss – ergänzt durch Bauingenieur- und Baumeisterkompetenz im Haus.

Wir übernehmen für Sie die komplette Hausbau- und Architekturplanung in Wien und Niederösterreich: von der ersten Idee über die Entwurfsplanung bis zur vollständigen Einreichplanung und Begleitung im Verfahren mit der Baubehörde.

Warum eine professionelle Planung für Ihr Einfamilienhaus so entscheidend ist

Ein Einfamilienhaus baut man meist nur einmal im Leben – Planungsfehler bleiben dagegen jahrzehntelang. Eine hochwertige Hausbauplanung bringt Ihnen:

  • Planungssicherheit & Budgetklarheit
  • ein Haus, das zu Grundstück, Widmung und Bebaubarkeit passt
  • eine Einreichplanung nach Bauordnung Wien & NÖ
  • eine solide Basis für Baukosten, Angebotseinholung und spätere Bauabwicklung

Wir prüfen von Beginn an Widmung, Bauklasse, Bebauungsdichte, Abstandsflächen und Geländeverlauf – für ein fachlich und rechtlich stimmiges Projekt.

In diesem Artikel erhalten Sie alle relevanten Informationen zu den folgenden Themen

Professionelle Hausbau- & Architekturplanung

Eine gute Architekturplanung verbindet funktionale Grundrisse, stimmige Proportionen und eine klare bautechnische Lösung. Unser Ziel ist ein Einfamilienhaus, das zu Ihren Lebensgewohnheiten, Ihrem Budget und den rechtlichen Rahmenbedingungen passt.

Dabei achten wir besonders auf:

  • sinnvolle Organisation von Wohnen, Schlafen, Arbeiten und Nebenräumen
  • kurze Wege und gute Nutzbarkeit im Alltag
  • Belichtung, Ausblicke und Privatheit
  • eine Bauweise, die zum Grundstück und zur Umgebung passt

So entsteht nicht nur ein schöner Entwurf, sondern eine Planung, die sich auch in der Praxis bewährt.

Architekt Einfamilienhausplanung Visualisierung

Unsere Leistungen für Ihr Einfamilienhaus

Entwurfsplanung – von der Idee zum klaren Konzept

Die Entwurfsplanung ist die wichtigste Phase Ihres Projekts. Wir entwickeln gemeinsam:

  • maßstabsgetreue Grundrisse, Schnitte und Ansichten
  • funktionale und ästhetische Raumkonzepte
  • Variantenuntersuchungen (Bauweise, Grundrisslösungen, Architekturvarianten)
  • Grundstücksanalyse: Hanglage, Widmung, Bauvorschriften
  • erste Kostenschätzung
  • Visualisierungen zur realistischen Beurteilung des Entwurfs

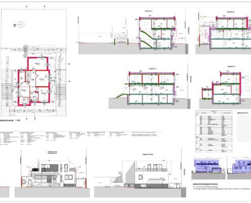
Einreichplanung & Einreichplan Wien / Niederösterreich

Die Einreichplanung enthält sämtliche Unterlagen, die für die Baubewilligung notwendig sind.

Wir erstellen:

  • vollständigen Einreichplan gemäß Bauordnung Wien / NÖ – inklusive Einreichplan Wien für Projekte im Stadtgebiet
  • Lageplan, Grundrisse, Schnitte, Ansichten
  • Baubeschreibung & technische Daten
  • Nachweise zu Abstandsflächen, Bebauungsdichte, Gebäudehöhe, Geländeverlauf
  • Vorstatik/Statik (falls erforderlich)
  • Energieausweis
  • behördliches Einreichen & Begleitung bis zur Bewilligung

Unser Anspruch ist dabei, die Unterlagen so vollständig und klar aufzubereiten, dass Rückfragen der Behörde minimiert werden und Sie möglichst rasch zur Baubewilligung kommen.

Energieeffizientes & modernes Einfamilienhaus

Wir achten bereits in der Planung auf:

  • energieeffiziente Gebäudehülle
  • optimale Belichtung & Orientierung
  • Passivhaus- und Niedrigenergiekonzepte
  • ökologische Bauweisen

So entsteht ein modernes Einfamilienhaus, das nicht nur optisch überzeugt, sondern auch im laufenden Betrieb wirtschaftlich bleibt.

So läuft die Planung Ihres Einfamilienhauses mit uns ab

  1. Erstgespräch & Bedarfsanalyse – Wünsche, Budget, Zeitrahmen
  2. Grundstücksanalyse & Prüfung der Bebaubarkeit – Widmung, Bauklasse, Abstände
  3. Entwicklung erster Entwurfsvarianten – funktionale & architektonische Lösungen
  4. Optimierung & finaler Entwurf – bis zur entscheidungsreifen Version
  5. Erstellung der vollständigen Einreichplanung – inkl. aller technischen Nachweise
  6. Begleitung bis zur Baubewilligung – Behördenkommunikation & Klärung von Rückfragen

Auf Wunsch übernehmen wir danach auch Ausschreibung, Vergabe, Bauaufsicht sowie spätere Verwaltung oder Vermietung.

Kosten für die Planung eines Einfamilienhauses

Die Kosten hängen von Größe, Komplexität und gewünschtem Leistungsumfang ab. Im Erstgespräch erhalten Sie:

  • eine transparente Einschätzung des nötigen Planungsaufwands
  • einen strukturierten Leistungs- und Honorarvorschlag
  • Hinweise zur optimalen Budgetnutzung

So behalten Sie die Kontrolle über Ihr Budget und wissen früh, mit welchen Planungs- und Baukosten Sie rechnen können.

Zubau, Umbau & Spezialfälle wie Hanglagen

Wir planen nicht nur Neubauten, sondern auch:

  • Zubauten & Aufstockungen
  • Umbauten im Bestand
  • Einfamilienhäuser auf Hanglage, inkl. Analyse von Geländeverlauf, Belichtung & Erschließung

Für diese Fälle bieten wir spezialisierte Lösungen samt Entwurf, Statik und Einreichplanung. Auf Wunsch können diese Themen später auch auf eigenen Unterseiten vertieft werden.

Warum Brehm Immobilien? – Planung & Einreichung aus einer Hand

  • Architekturplanung durch erfahrene Planerinnen mit Architekturabschluss
  • Bauingenieur-, Baumeister- & Immobilientreuhänder-Know-how kombiniert
  • Begleitung vom Entwurf bis zur Baubewilligung
  • auf Wunsch: Vermietung, Verkauf & Verwaltung
  • 4,9 Sterne aus über 120 Bewertungen

Fixpreise & verlässliche Partnerfirmen

Wir arbeiten seit vielen Jahren mit verlässlichen Generalunternehmern zusammen, die auf Basis unserer Planungen klare und nachvollziehbare Fixpreisangebote legen können. Diese Zusammenarbeit hat sich in zahlreichen Projekten bewährt und bietet Ihnen entscheidende Vorteile:

  • echte Kostenklarheit: Fixpreise statt Schätzungen – keine späteren Überraschungen
  • planbare Abläufe: GU-Partner arbeiten präzise nach unserer Planung und Statik
  • hohe Ausführungssicherheit: nur Unternehmen, die sich in Qualität und Zuverlässigkeit bewährt haben
  • eine saubere Schnittstelle: unsere Planung ist so detailliert, dass GU-Angebote genau kalkuliert werden können

Für Sie bedeutet das: ein deutlich geringeres Risiko, klare Zuständigkeiten und ein entspanntes Gefühl während der gesamten Bauphase.

Unser Anspruch: eine architektonisch hochwertige, technisch fundierte und rechtlich saubere Planung – mit einem klaren Blick auf Kosten, Termine und Umsetzbarkeit.

Häufige Fragen zur Planung eines Einfamilienhauses (FAQ)

Zu Beginn steht ein unverbindliches Erstgespräch, in dem wir Ihre Wünsche, das Grundstück, das Budget und den zeitlichen Rahmen besprechen. Danach folgen Grundstücksanalyse, Entwurfsplanung, Optimierung des Entwurfs und schließlich die Einreichplanung mit allen notwendigen Unterlagen für die Baubehörde.

Die Kosten hängen von Größe und Komplexität des Projekts sowie vom gewünschten Leistungsumfang ab (nur Einreichplan oder Begleitung von Entwurf bis Baubewilligung). Im Erstgespräch erhalten Sie eine transparente Einschätzung des Planungsaufwands und einen klar strukturierten Honorarvorschlag.

Ja. Sobald ein bewilligungspflichtiges Bauvorhaben vorliegt, verlangt die Baubehörde eine vollständige Einreichplanung nach der jeweiligen Bauordnung (z. B. Wien oder Niederösterreich). Ohne korrekte Einreichunterlagen ist keine Baubewilligung möglich.

Viele Entwurfs- und Planungsleistungen können von befugten Planungsbüros, Baumeistern oder Ziviltechnikern erbracht werden. Entscheidend ist, dass Ihr Projekt fachlich korrekt, baurechtlich sauber und in der Einreichplanung vollständig aufbereitet wird. Wir kombinieren Architektur-Know-how mit Bauingenieur- und Baumeisterkompetenz und begleiten Sie durch den gesamten Planungsprozess.

Die Kosten für einen Einreichplan in Wien hängen von Größe, Komplexität und Ausgangssituation (Neubau, Zubau, Umbau) ab. In einem Erstgespräch können wir auf Basis Ihrer Unterlagen und Vorstellungen eine realistische Kostenschätzung für die Einreichplanung abgeben.

Die Dauer hängt vom Projektumfang und der Bearbeitungszeit der Behörde ab. Für Entwurf und Einreichplanung sollten Sie mehrere Wochen einplanen, die behördliche Prüfung kann – je nach Gemeinde und Vollständigkeit der Unterlagen – mehrere Wochen bis einige Monate dauern.

Hilfreich sind vorhandene Pläne oder Unterlagen zum Grundstück (Grundbuchsauszug, Flächenwidmungsplan, Bebauungsbestimmungen, Vermessungsplan), erste Vorstellungen zu Größe und Nutzung des Hauses sowie eine grobe Budgetvorstellung. Wenn etwas fehlt, unterstützen wir Sie bei der Beschaffung.

Ja. Wir planen Ihr Projekt nicht nur, sondern arbeiten mit verlässlichen Generalunternehmern zusammen, die auf Basis unserer Planung Fixpreisangebote legen können. Auf Wunsch begleiten wir Sie auch in der weiteren Projektabwicklung.

Bei uns ist Ihr geplanter Haus in den besten Händen.

Jetzt Beratungstermin sichern