Referenzprojekt 1180 Wien
Referenzprojekt 1180 Wien – Erfolgreiche Modernisierung und Grundrissoptimierung
Die erfolgreiche Sanierung einer Wohnung in einem Jahrhundertwendehaus in 1180 Wien ist ein weiteres Beispiel für unsere Kompetenz in der Altbausanierung und Wohnungssanierung in Wien.
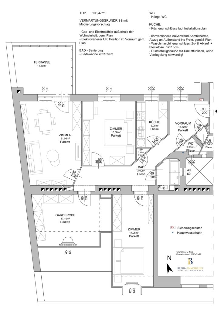
Ausgangslage: abgewohnte Wohnung 90 m² im 18. Bezirk
Die Ausgangslage bei der Sanierung mit Raumgewinn sah wie folgt aus: Die 90m² Wohnung in 1180 Wien wies vor der Sanierung einige deutliche Schwächen auf. Trotz der großzügigen Fläche besaß sie lediglich zwei Zimmer, was angesichts der Lage eine unzureichende Ausnutzung des vorhandenen Potenzials darstellte. Die Küche sowie das Heizsystem waren veraltet, das Badezimmer entsprach weder funktional noch optisch dem Anspruch, den man in der Lage nahe dem Türkenschanzpark erwarten darf. Zudem waren die vorhandenen alten Holzkastenfenster bereits stark beschädigt, und laut Hausverwaltung kam es wiederholt zu Wassereintritten.
Dank gezielter Sanierungsmaßnahmen konnte das volle Potenzial der Wohnung ausgeschöpft werden.
Maßnahmen der durchgeführten Sanierung
Durch gezielte bauliche Eingriffe konnte die Wohnung sowohl optisch als auch funktional deutlich aufgewertet werden:
-
Drittes Zimmer: Zwischenwände gesetzt, ideal für Schlafzimmer, Homeoffice oder Kinderzimmer.
-
Modernisierung der Haustechnik: Neues Heizsystem und zeitgemäße Elektrik.
-
Altbaucharakter bewahren: Fischgrät-Parkett instandgesetzt, neue Kassettentüren eingebaut.
-
Fenster & Küche: Austausch alter Holzkastenfenster, moderne Küche inklusive Waschmaschinenanschluss.
Modernisierte Wohnung mit mehr Wohnkomfort
Dank der durchdachten Grundrissanpassung konnte ein drittes Zimmer realisiert werden – ideal als Schlafzimmer, Homeoffice oder Kinderzimmer. Die Wohnung ist nicht nur modernisiert worden, sondern wurde dadurch attraktiver für eine breitere Zielgruppe gestaltet – von Singles mit Platzbedarf bis hin zu Familien.
Grundrissoptimierung mit Weitblick
Ob als Investmentobjekt oder zur Eigennutzung – wir zeigen Ihnen, wie Sie mit intelligenter Raumaufteilung das volle Potenzial Ihrer Immobilie ausschöpfen. Vertrauen Sie auf unsere Erfahrung in der Altbausanierung!
Fakten
Wohnungsgröße: 90 m²
Baujahr: 2025
Bauzeit: 3,5 Monate
Gewerke: Planer, Baumeister, Elektriker, Installateur, Bodenleger, Fliesenleger, Maler, Tischler




























